Voor deze woning aan de Meidoornlaan is een compacte uitbreiding ontworpen die het bestaande huis opnieuw verbindt met zijn omgeving. Waar de oorspronkelijke woning zich relatief gesloten tot de tuin verhield, opent de nieuwe toevoeging het huis naar licht, groen en buitenruimte.
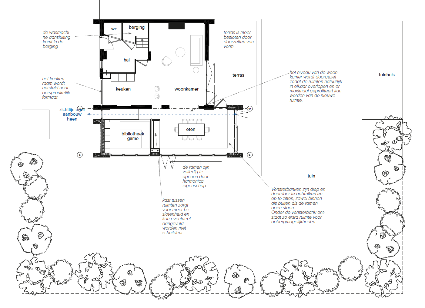
De uitbreiding vormt een helder en ingetogen volume aan de tuinzijde van de woning. Grote glasvlakken en een volledig te openen harmonicapui zorgen ervoor dat interieur en tuin in elkaar overlopen. De woonruimte kan hierdoor in de zomer volledig naar buiten worden uitgebreid, terwijl het huis in de winter toch beschutting en intimiteit biedt.
Het ontwerp maakt het verschil tussen oud en nieuw bewust zichtbaar en tegelijkertijd wordt de ontwerp taal gebruikt om de nieuwe uitbreiding vorm te geven. Het bestaande metselwerk van de woning blijft intact en vormt een robuuste achtergrond voor de nieuwe toevoeging. Daartegenover staat een lichte en precieze architectuur van hout, glas en slanke kozijnen. Door dit contrast blijft de geschiedenis van het huis leesbaar, terwijl het geheel toch als één samenhangende woning wordt ervaren.
Binnen speelt de constructie een belangrijke rol in de ruimtelijke beleving. Het plafond van de uitbreiding bestaat uit een zichtbare houten balkenstructuur die warmte en ritme aan de ruimte geeft. Samen met het zachte daglicht en het uitzicht op de tuin ontstaat een rustige, bijna paviljoenachtige woonruimte.
De nieuwe plattegrond brengt keuken, eetruimte en woonkamer in een heldere ruimtelijke volgorde samen. Door de grote openingen ontstaat een lange zichtlijn door het huis richting de tuin, waardoor het landschap onderdeel wordt van het dagelijks wonen.
Met relatief beperkte middelen verandert de uitbreiding de manier waarop het huis wordt gebruikt. De woning wordt lichter, opener en meer verbonden met haar omgeving. Daarmee laat het project zien hoe een kleine architectonische ingreep een bestaand huis opnieuw kan laten functioneren.
Projectinformatie
Project
Uitbreiding Woonhuis Rotterdam
Uitbreiding Woonhuis Rotterdam
Locatie
Rotterdam, Nederland
Rotterdam, Nederland
Programma
renovatie en uitbreiding van een bestaande woning
renovatie en uitbreiding van een bestaande woning
Status
gerealiseerd
gerealiseerd
Architect
Bo Kristiaan Janssen
Bo Kristiaan Janssen
Materialisatie
metselwerk, hout, aluminium kozijnen, glas
metselwerk, hout, aluminium kozijnen, glas
meer: